Zum Hauptinhalt springen
Menü
Aktuell
Projekte
Person
Kontakt
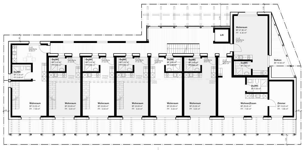
Wohnhaus mit Kleinwohnungen Gachnang