Zum Hauptinhalt springen
Menü
Aktuell
Projekte
Person
Kontakt
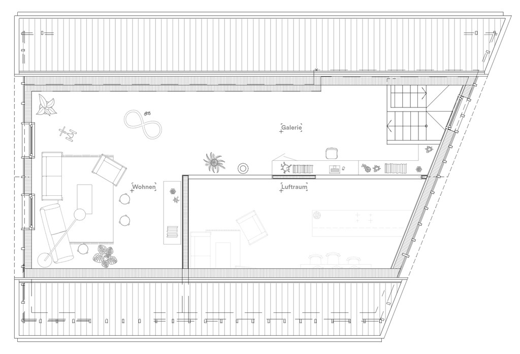
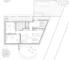
Neubau "Stöckli" auf bestehendes Kellergeschoss